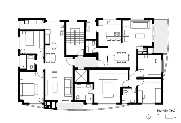
edifício residencial valparaíso

projeto residencial multifamiliar

+1/15

arquitetura: roberta rech  construtora: mavel engenharia e construções ltda / área projeto: 2.828,00m2 / ano: 2003-2006 / estado: construído / local: são leopoldo- rs / fotografia: antonio valiente

edifício residencial valparaíso

projeto residencial multifamiliar

+

arquitetura: roberta rech  construtora: mavel engenharia e construções ltda / área projeto: 2.828,00m2 / ano: 2003-2006 / estado: construído / local: são leopoldo- rs / fotografia: antonio valiente