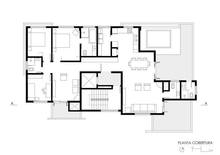
edifício residencial montecastelo

projeto residencial multifamiliar

+1/15

arquitetura: roberta rech  construtora: mavel engenharia e construções ltda / área projeto: 2.643,00m2 / ano: 2002-2004 / estado: construído / local: são leopoldo- rs / fotografia: antonio valiente

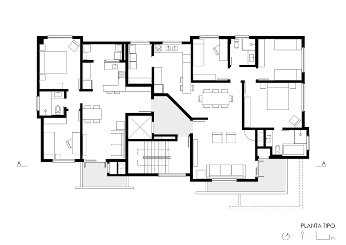
edifício residencial montecastelo

projeto residencial multifamiliar

+

arquitetura: roberta rech  construtora: mavel engenharia e construções ltda / área projeto: 2.643,00m2 / ano: 2002-2004 / estado: construído / local: são leopoldo- rs / fotografia: antonio valiente